Piaseczno | Lokal usługowy |165,9m2| ul.Albatrosów
Piaseczno Pokaż na mapie ›
Dodane: Wtorek, 28 Październik, 2025 05:50
359 987 zł
Szczegóły ogłoszenia
- Kategoria: Biura i lokale / Sprzedaż
- Powierzchnia:166 m2
- Sprzedaż:Pośrednik
- Cena: 359 987 zł
Opis oferty
Oferta dodana za pomocą Multiportalu BeBrokerZobacz lokal bez wychodzenia z domu!
Zapraszamy na wirtualny spacer dostępny pod linkiem (skopiuj i wklej do przeglądarki): sb360.online/znkvjs
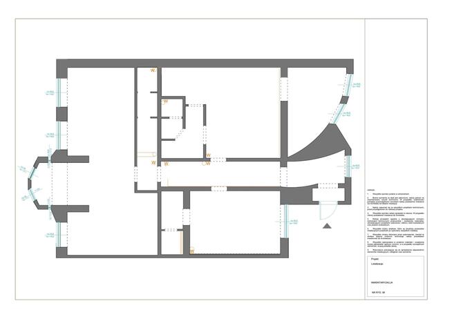
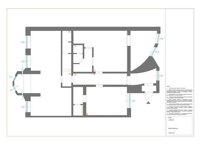
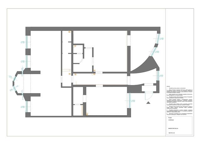
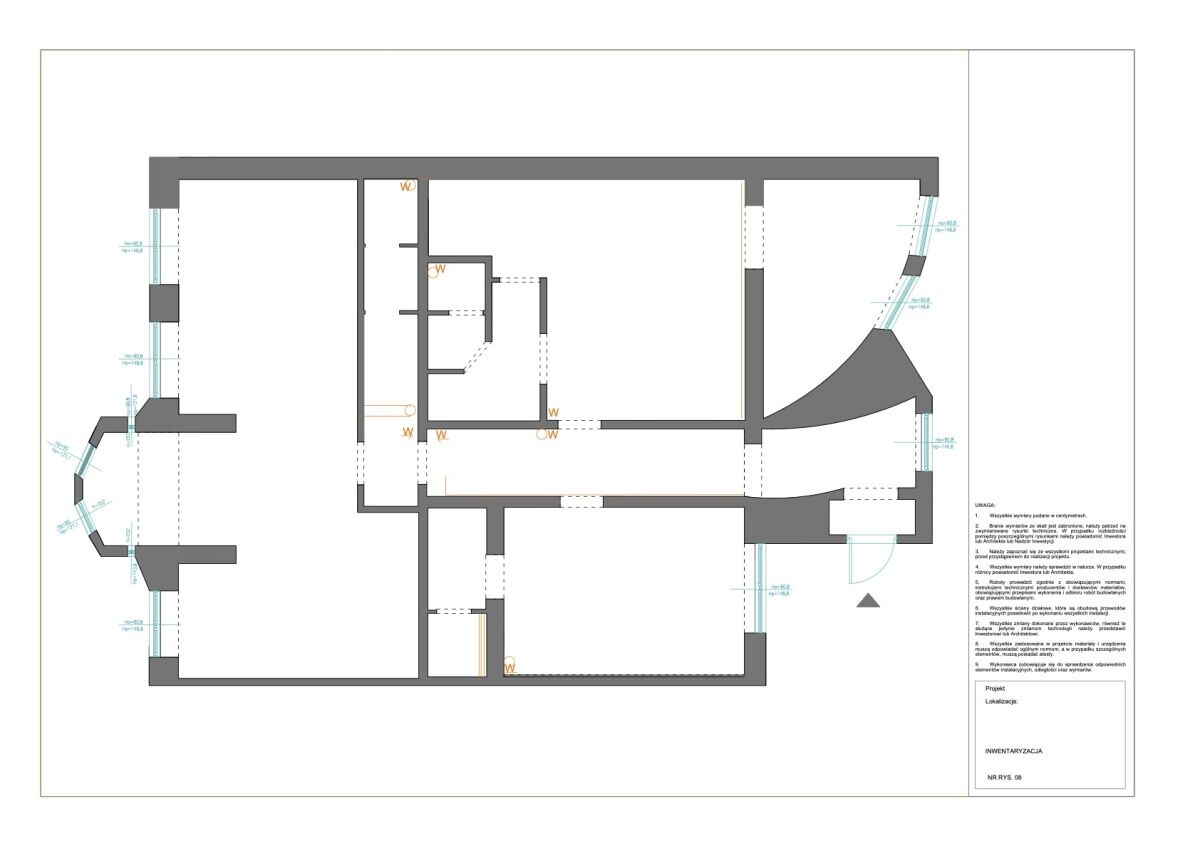
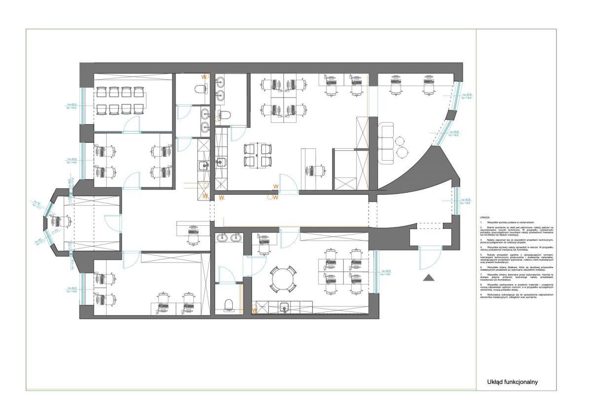
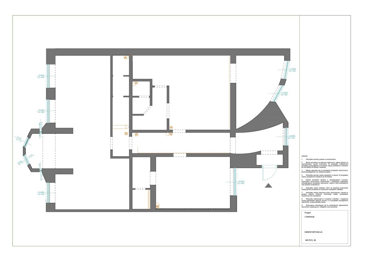
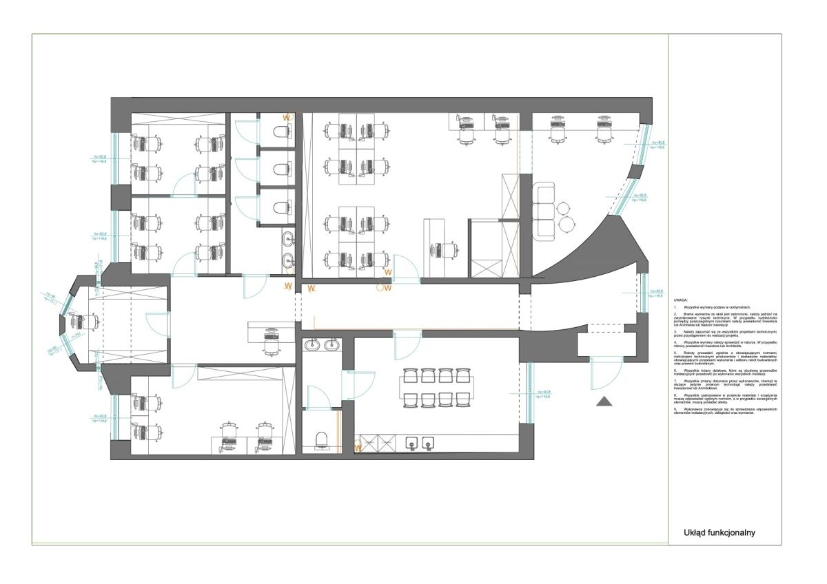
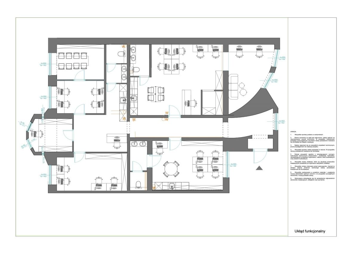
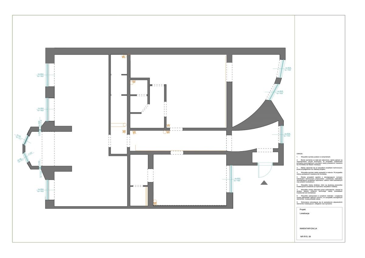
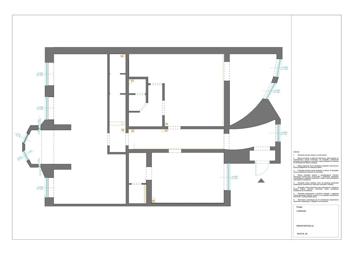
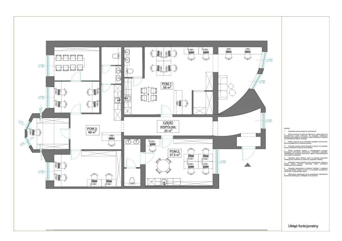
Lokal usługowy 165,9 m² – Piaseczno, ul. Albatrosów 24C
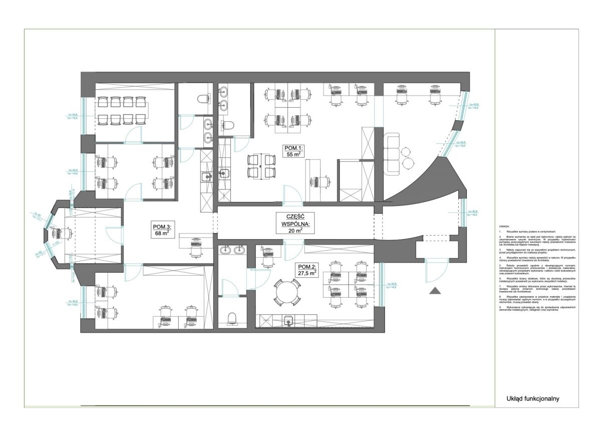
Z dużym potencjałem – możliwość podziału na 3 niezależne lokale!
Na sprzedaż przestronny lokal użytkowy o powierzchni 165,9 m², usytuowany w podpiwniczeniu budynku mieszkalnego przy ul. Albatrosów 24C w Piasecznie. To doskonała propozycja dla inwestora, przedsiębiorcy lub każdego, kto szuka przestrzeni z ogromnym potencjałem aranżacyjnym.
Dlaczego warto?
• 165,9 m² powierzchni do dowolnej aranżacji
• Możliwość wydzielenia trzech niezależnych lokali użytkowych na jednej księdze wieczystej
• Wejście z poziomu -1 (podpiwniczenie)
• Stan prawny: pełna własność
• Media: woda, kanalizacja, prąd
• Budynek z 1999 roku, zadbane osiedle z ogólnodostępnym parkingiem
• Czynsz do wspólnoty: ok. 800 zł
• Brak centralnego ogrzewania – pełna swoboda w wyborze źródła ciepła
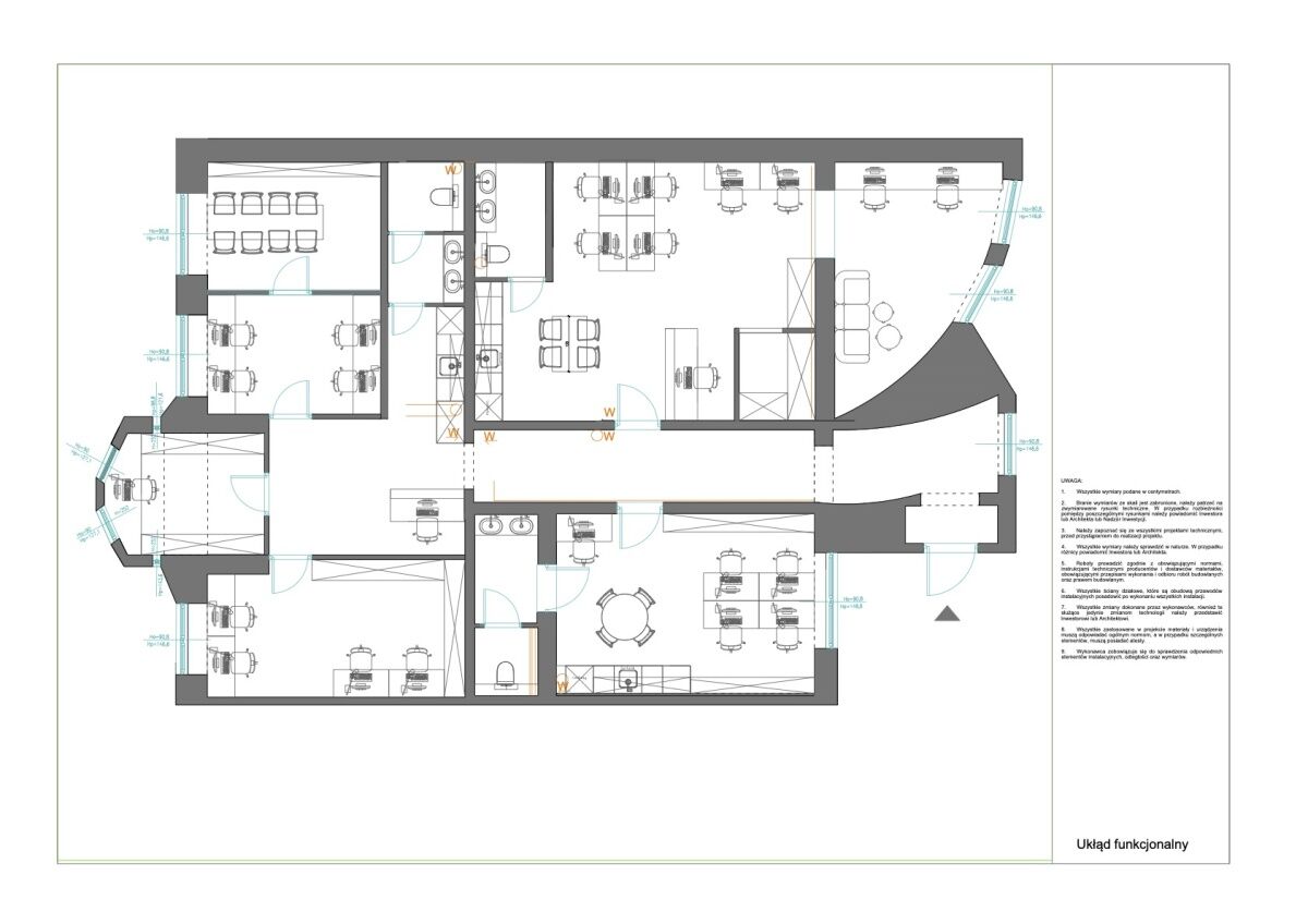
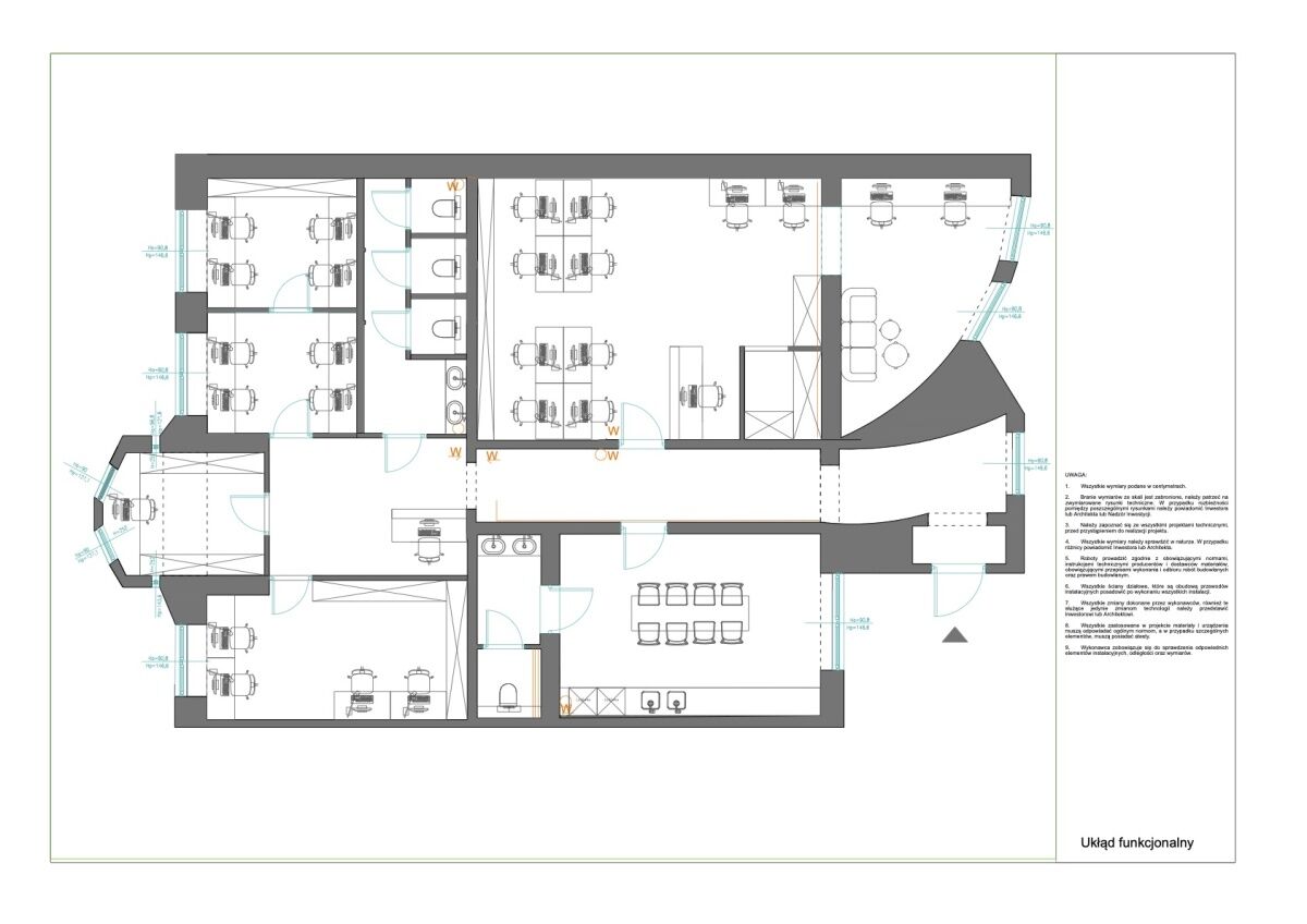
W galerii zdjęć dostępne są przykładowe układy funkcjonalne, które pokazują, jak różnorodnie można zaaranżować tę przestrzeń.
Masz pomysł na biznes? A może szukasz przestrzeni do wynajmu?
Ten lokal daje Ci elastyczność, jakiej potrzebujesz.
Skontaktuj się z nami – chętnie udzielimy szczegółowych informacji i umówimy prezentację.
Do ceny należy doliczyć prowizję biura nieruchomości w wysokości 3%.
Telefon: 509 - pokaż numer telefonu -
Sprawdź zainteresowanie tym ogłoszeniem
Wyświetlenia
Data dodania
Ostatnio widziany
Obserwujących
Wysłane zapytania
Odsłony telefonu
Powiadom o podobnych ogłoszeniach
Lokalizacja: Piaseczno
Kategoria: Nieruchomości » Biura i lokale » Sprzedaż
Cena: od 306000 zł do 414000 zł Powierzchnia : od 141 m2 do 191 m2
Chcę otrzymywać powiadomienia o nowych ofertach
- Wypromuj ogłoszenie
- Zgłoś naruszenie
- Drukuj ulotkę
- Edytuj/usuń ogłoszenie
- Udostępnij ogłoszenie
- Dodaj na Facebook
































